Casual Slot Games Canada

The

Ranch Hand

 
 
 
 
 
 
 
 
SLAB-ON-GRADE, BUILT TO LOCK-UP BY INTEGRITY

This attractive 32’x65′ bungalow is inspired by simplicity and functionality with approximately 1900 square feet of living space. The Ranch Hand has room for 3 bedrooms, 2 bathrooms, a great room, a kitchen and dining area, plus laundry, storage, and separate family room space. This model includes a covered porch on both the front and rear of the home.

Key Features of The Ranch Hand

Built with our DuraColumn Foundation, this slab-on-grade house is professionally designed and engineered. Integrity crews will build your home to the lock-up stage which includes exterior walls, roof, windows, doors and metal siding. The interior is ready for you and your contractor to take over and complete.

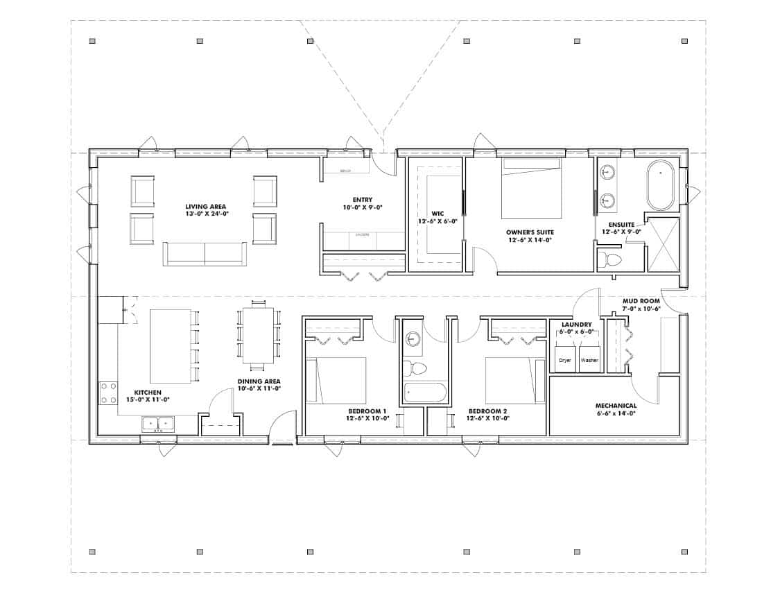
The Ranch Hand also comes with a complete drawing package including the floor plan for permit application.

FEATURES

Living Space  1905 sq ft
Bedrooms  3
Bathrooms  2

AVAILABLE UPGRADES

– 7/16” OSB Wall Sheathing
– Board and Batten or Horizontal Plank wall metal profiles
– Wainscot metal accent
– Triple Glaze Windows
– Black Windows
– Fir posts

MODEL STARTING AT $179,000

– Pricing subject to change
– Pricing does not include taxes and freight

FLOOR PLAN 1905 SQ FT

Residential Buildings Integrity Post Structure Ranch Hand Floor Plan
WHAT’S INCLUDED
  • DESIGN AND ENGINEERING
    – Engineered, stamped drawings
    – Complete floor plan layouts
  • Windows and Doors
    – White, Vinyl, Dual Glaze, Low E Casement windows
    – 36” steel door slabs
         • ½ Glass at front entry
         • Full Glass at dining room
         *As per standard plan designs shown
  • ROOF
    – Engineered roof trusses
    – 2×6 strapping
    – 7/16″ OSB sheathing
    – 29 gauge coloured Metal with synthetic underlay
  • EXTERIOR WALLS
    – 2×8 Laminated posts
    – 2×4 horizontal strapping (exterior of post)
    – House Wrap
    – 29 Gauge coloured Metal
  • WARRANTY
    Coverage on labour and materials as follows;
    – 5 years: Defects on supplied material and labour
    – 40 years: Metal Finish
    – Lifetime: DuraColumn Foundation
Integrity Residential Building Ranch Hand

ALL MODELS

Integrity Residential Building Ranch Hand
BUNK HOUSE
RANCH HAND
CARRIAGE HOUSE
CARRIAGE HOUSE XL
SHOUSE
FARM HOUSE
BARNDOMINIUM
HIGHWOOD
HOMESTEAD
PRAIRIE PEAK
GUEST HOUSE

CONTACT US ABOUT YOUR PROJECT

Integrity Buildings Residential form

This field is for validation purposes and should be left unchanged.
integrity construction
integrity welding
post frame structure
BUILD YOUR NEXT PROJECT WITH INTEGRITY

You’ll notice the difference with an Integrity Post Structures crew from the moment they arrive on your site. Their attention to detail, skill level and lastly — but just as importantly — the respectful way they interact with our clients. If you need service down the road, we are just a phone call away. Our level of service stands out in the industry. It’s our everyday way of doing business.