Casual Slot Games Canada

The

Barndominium

SLAB-ON-GRADE, BUILT TO LOCK-UP BY INTEGRITY

The Barndominium, with its country design, open concept and abundance of natural light, combines a beautiful family home with the utility of an attached working area. The residence offers over 2500 sq ft of living space featuring an open-concept living area with a large kitchen and dining area, as well as three bedrooms, 2 full bathrooms and 2 half bathrooms, mud room and laundry. The second floor boasts a large bonus area. Attached to the living space is an oversized garage or workspace that can be further customized to meet your lifestyle.

Key Features of The Barndominium

Built with our DuraColumn Foundation, this slab-on-grade house is professionally designed and engineered. Integrity crews will build your home to the lock-up stage which includes exterior walls, roof, windows, doors and metal siding. The interior is ready for you and your contractor to take over and complete.

The Barndominium comes with an engineered drawing package, including a site plan and code analysis for permit application.

FEATURES

Living Space  2518 sq ft
Bedrooms  3
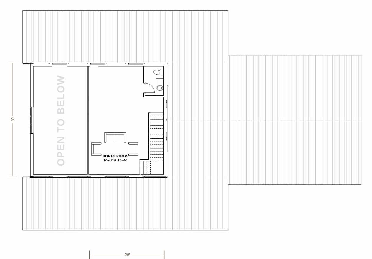
Loft 560 sq ft
Bathrooms  2 full & 2 half
Garage 30’x50′

AVAILABLE UPGRADES

– 7/16” OSB Wall Sheathing
– Board and Batten or Horizontal Plank wall metal profiles
– Wainscot metal accent
– Triple Glaze Windows
– Black Windows
– Fir posts

MODEL STARTING AT $301,000

– Pricing subject to change
– Pricing does not include   taxes and freight

MAIN FLOOR 1958 SQ FT

Integrity Post Frame Residential Barndominium Barndo floor plan

SECOND FLOOR 560 SQ FT

barndominium second floor plan
WHAT’S INCLUDED
  • DESIGN AND ENGINEERING
    – Engineered, stamped drawings
    – Complete floor plan layouts
  • Windows and Doors
    – White, Vinyl, Dual Glaze, Low E Casement windows
    – 36” steel door slabs
         • ½ Glass at front entry
         • Full Glass at dining room
         • 16’ x 8’ Overhead doors, white, no operator (if applicable)
         *As per standard plan designs shown
  • ROOF
    – Engineered roof trusses
    – 2×6 strapping
    – 7/16″ OSB sheathing
    – 29 gauge coloured Metal with synthetic underlay
  • EXTERIOR WALLS
    – 2×8 Laminated posts
    – 2×4 horizontal strapping (exterior of post)
    – House Wrap
    – 29 Gauge coloured Metal
  • WARRANTY
    Coverage on labour and materials as follows;
    – 1 year: Overhead doors and windows
    – 5 years: Defects on supplied material and labour
    – 40 years: Metal Finish
    – Lifetime: DuraColumn Foundation
Integrity Post-Frame Residential Barndominium Barndo Red

ALL MODELS

Integrity Post-Frame Residential Barndominium Barndo Red
BUNK HOUSE
RANCH HAND
CARRIAGE HOUSE
CARRIAGE HOUSE XL
SHOUSE
FARM HOUSE
BARNDOMINIUM
HIGHWOOD
HOMESTEAD
PRAIRIE PEAK
GUEST HOUSE

CONTACT US ABOUT YOUR PROJECT

Integrity Buildings Residential form

This field is for validation purposes and should be left unchanged.
integrity construction
integrity welding
post frame structure
BUILD YOUR NEXT PROJECT WITH INTEGRITY

You’ll notice the difference with an Integrity Post Structures crew from the moment they arrive on your site. Their attention to detail, skill level and lastly — but just as importantly — the respectful way they interact with our clients. If you need service down the road, we are just a phone call away. Our level of service stands out in the industry. It’s our everyday way of doing business.